Skip to main content

भोपाल मेट्रो का सुभाष नगर डिपो: नवाचार और रखरखाव का केंद्र

 


भोपाल, मध्य प्रदेश की राजधानी, भोपाल मेट्रो रेल परियोजना के साथ अपने परिवहन प्रणाली में क्रांतिकारी बदलाव की कगार पर है। शहरी परिवहन की बढ़ती मांगों को पूरा करने के उद्देश्य से, निर्माणाधीन मास रैपिड ट्रांजिट सिस्टम (MRTS) न केवल ट्रैफिक की भीड़ को कम करेगा, बल्कि वायु गुणवत्ता में सुधार करेगा और शहर की बढ़ती आबादी के लिए एक मजबूत, कुशल ट्रांजिट समाधान भी प्रदान करेगा।

परियोजना का अवलोकन

भोपाल मेट्रो परियोजना, मध्य प्रदेश मेट्रो रेल कॉर्पोरेशन लिमिटेड (MPMRCL) द्वारा क्रियान्वित की जा रही है, जिसमें दो प्रमुख लाइनें शामिल हैं: ऑरेंज लाइन और ब्लू लाइन। इस परियोजना की देखरेख सामान्य परामर्शदाता DB, जियोडाटा और लुइस बर्जर द्वारा की जाती है।

मुख्य विवरण:

  • ग्राहक: मध्य प्रदेश मेट्रो रेल कॉर्पोरेशन लिमिटेड (MPMRCL)
  • सामान्य परामर्शदाता: DB जियोडाटा और लुइस बर्जर
  • परियोजना का दायरा: इसमें एलिवेटेड और भूमिगत स्टेशन, डिपो, एलिवेटेड सेक्शन, भूमिगत टनल और रैंप शामिल हैं।

प्रथम चरण की लाइनें

ऑरेंज लाइन:

  • रूट: एम्स से करोंद सर्कल तक
  • एलिवेटेड सेक्शन: 13.35 किमी
  • एलिवेटेड स्टेशन: 13
  • इंटरचेंज स्टेशन: 1
  • भूमिगत टनल: 3.39 किमी
  • भूमिगत स्टेशन: 2

ब्लू लाइन:

  • रूट: भदभदा स्क्वायर से रत्नागिरी तिराहा तक
  • एलिवेटेड सेक्शन: 14.16 किमी
  • एलिवेटेड स्टेशन: 13
  • इंटरचेंज स्टेशन: 1

डिपो का अवलोकन

भोपाल मेट्रो में पहले चरण के लिए एक पूर्ण विकसित डिपो शामिल है, जो ऑरेंज और ब्लू दोनों लाइनों को समायोजित करता है। सुभाष नगर में 26 हेक्टेयर के क्षेत्र में फैला यह डिपो रोलिंग स्टॉक, सिग्नलिंग और दूरसंचार (S&T), प्लेटफॉर्म स्क्रीन डोर्स (PSD), स्वचालित किराया संग्रह (AFC), ट्रैक्शन, और स्थायी मार्ग (P-way) के स्थिरीकरण, संचालन नियंत्रण और रखरखाव के लिए सभी आवश्यक सुविधाओं से लैस है। यह ऑपरेशन कंट्रोल सेंटर और प्रशिक्षण केंद्र का भी घर है जो मेट्रो रेल नेटवर्क के पूरे पहले चरण के संचालन को प्रबंधित करता है।

भोपाल मेट्रो रेल का समग्र लेआउट

फिगर 1. लेआउट

डिपो में प्रमुख सुविधाएं

  1. प्रशासनिक सह ऑपरेशन कंट्रोल सेंटर और डिपो कंट्रोल सेंटर बिल्डिंग:
  • यह भवन मेट्रो रेल प्रणाली के संचालन और रखरखाव की निगरानी और नियंत्रण के लिए डिज़ाइन किया गया है। इसमें एक क्रेच, चिकित्सा कक्ष, प्रार्थना कक्ष, प्रशिक्षण कक्ष, सर्वर संचालन और सिग्नलिंग मरम्मत कक्ष शामिल हैं। यहां एक कैंटीन, क्रू बुकिंग सेंटर और एक प्रशिक्षण संस्थान भी है।
फिगर 2 .प्रशासनिक सह ऑपरेशन कंट्रोल सेंटर

2. ऑपरेशन कंट्रोल सेंटर (OCC):

  • OCC से मेट्रो रेल नेटवर्क की मुख्य लाइन में ट्रेन की आवाजाही की निगरानी और नियंत्रण किया जाता है।
फिगर 3. ऑपरेशन कंट्रोल सेंटर

3. डिपो कंट्रोल सेंटर (DCC):

  • DCC पूरे डिपो में ट्रेन की आवाजाही की निगरानी और नियंत्रण करता है, जिसमें निर्धारित/अवधि-निर्धारित शंटिंग और विभिन्न शेड्स और लाइनों में निरीक्षण/रखरखाव गतिविधियाँ शामिल हैं।
फिगर 4. डिपो कंट्रोल सेंटर

4. स्टेबलिंग शेड:

  • यह शेड ट्रेन रैक को समायोजित करने के लिए स्टेबलिंग लाइनों और प्लेटफार्मों से सुसज्जित है, जो नियमित जांच और परिचालन आवश्यकताओं को सुविधाजनक बनाता है। यह शेड रात और गैर-पीक घंटों के दौरान 6 कारों के 27 ट्रेन सेट के स्थिरीकरण के लिए है। सभी लाइनों में ट्रेन की आवाजाही के लिए तीसरी रेल ट्रैक्शन पावर की सुविधा है।
फिगर 5. स्टेबलिंग शेड

5. निरीक्षण बे लाइन/शेड:

  • इस शेड में चार निरीक्षण लाइनें हैं, जिनमें अंडरफ्रेम निरीक्षण के लिए सन्कन फ्लोर, छत तक पहुंचने का प्लेटफॉर्म, ट्रैक्शन के लिए स्टिंगर, EOT क्रेन, और संपीडित वायु लाइनों की सुविधाएं हैं। नियमित निरीक्षण (टाइप B और टाइप C) 15 दिनों, 30 दिनों और 90 दिनों के अंतराल पर सभी ट्रेन सेटों के लिए किया जायेगा।
फिगर 6. निरीक्षण बे लाइन/शेड

6. वर्कशॉप/रिपेयर बे लाइन/शेड:

  • इस शेड में चार लाइनें हैं, जिसमें अंडर-फ्लोर लिफ्टिंग जैक, मोबाइल लिफ्टिंग जैक, बोगी टर्नटेबल, ट्रैक्शन मोटर क्लीनिंग रूम, बोगी टेस्ट बेंच, संपीडित वायु कक्ष, EOT क्रेन और संपीडित वायु शामिल हैं। यहाँ सभी प्रकार के रखरखाव (मैकेनिकल, इलेक्ट्रिकल, और इलेक्ट्रॉनिक), जिसमें इंटरमीडिएट ओवरहालिंग (IOH), आवधिक ओवरहालिंग, और रोलिंग स्टॉक की ब्रेकडाउन मरम्मत शामिल होगी।

7. पिट व्हील लेथ शेड:

  • इस सुविधा में 6-कार ट्रेन की लंबाई के लिए एक लाइन है, जो अंडरफ्लोर व्हील लेथ, EOT क्रेन, और संपीडित वायु लाइन से सुसज्जित है। रोलिंग स्टॉक व्हील प्रोफाइलिंग यहाँ बिना कोच को डी-कपलिंग किए या व्हील सेट को रोलिंग स्टॉक कोच से हटाए किए जायेंगे, जिससे रखरखाव का समय काफी बचता है।
फिगर 7. पिट व्हील लेथ शेड

8. आपातकालीन और सहायक वाहन रखरखाव शेड (ETU शेड):

  • इस शेड में दो लाइनें हैं, जो EOT क्रेन और अंडरफ्रेम निरीक्षण के लिए गड्ढों से सुसज्जित हैं। यहाँ आपातकालीन और सहायक वाहनों के लिए सभी प्रकार के रखरखाव और सेवाएँ होंगी, जैसे बैटरी शंटर्स, शंटिंग लोकोमोटिव, रेल-कम-रोड बचाव वाहन, और वैगन।
फिगर 8. आपातकालीन और सहायक वाहन रखरखाव शेड

9. स्वचालित ट्रेन वॉश प्लांट:

  • यह प्लांट मुख्य लाइनों से डिपो की एक प्रवेश लाइन पर स्थित है और 3 से 5 किमी प्रति घंटे की गति से चलती ट्रेन के बाहरी हिस्से को साफ करता है। यह ट्रेन के आगे और पीछे के हिस्से की सफाई भी करता है, जहां ट्रेनें धोने वाले बिस्तर पर निर्दिष्ट बिंदुओं पर दो बार रुकती हैं। सभी सफाई गतिविधियाँ स्वचालित हैं, जिसमें मुख्य लाइन से डिपो लौटने वाली ट्रेनों के लिए मानव हस्तक्षेप की आवश्यकता नहीं होती है।
फिगर 9. स्वचालित ट्रेन वॉश प्लांट

10. टेस्ट ट्रैक:

  • डिपो में लगभग 850 मीटर की एक सीधी लाइन है जिसमें ट्रैक्शन सुविधाएं होंगी, जो विभिन्न परिस्थितियों में ट्रेन की गति, ब्रेकिंग, त्वरण, और मंदन का परीक्षण करती हैं। यह परीक्षण फैक्ट्री से नए ट्रेन सेट आने के बाद और/या बड़े मरम्मत के बाद किया जाता है, इससे पहले कि ट्रेनें संचालन के लिए मुख्य लाइन पर भेजी जाएं।
फिगर 10. टेस्ट ट्रैक

11. आंतरिक सफाई शेड:

  • इस शेड में 6-कार ट्रेन सेट के लिए एक लाइन है, जिसमें छत तक पहुंचने का प्लेटफॉर्म, अंडरफ्रेम तक पहुंच, ब्लोडाउन प्लांट, और उच्च-दबाव वाली जेट से सफाई की सुविधा है। इसका उपयोग हर 30 दिनों में ट्रेन सेटों की आंतरिक और बाहरी गहरी सफाई के लिए किया जायेगा।
फिगर 11. आंतरिक सफाई शेड

12. केंद्रीय डिपो स्टोर:

  • इस सुविधा का उपयोग रोलिंग स्टॉक, S&T, ट्रैक्शन, AFC, लिफ्ट और एस्केलेटर और विद्युत और यांत्रिक (E&M) कार्यों से संबंधित सभी भागों और स्पेयर को संग्रहीत करने के लिए किया जायेगा।
फिगर 12. केंद्रीय डिपो स्टोर

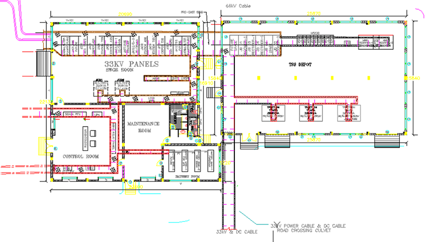
13. ट्रैक्शन सबस्टेशन:

  • यह सबस्टेशन एक प्राप्त करने वाले सबस्टेशन से 33 केवी बिजली प्राप्त करता है और ट्रेन की आवाजाही के लिए तीसरी रेल ट्रैक्शन के रूप में 750 V DC और सहायक सबस्टेशन को 415 V बिजली की आपूर्ति करता है।
फिगर 12. ट्रैक्शन सबस्टेशन

14. सहायक सबस्टेशन:

  • यह सबस्टेशन डिपो के भीतर सभी प्रणालियों (प्रकाश, संयंत्र और मशीनरी को बिजली की आपूर्ति, आदि) के लिए ट्रैक्शन के अलावा 415V बिजली प्रदान करता है।
फिगर 14. टाइपिकल सहायक सबस्टेशन

15. सुरक्षा:

  • एक स्थायी सीमा दीवार जो कम से कम 3 मीटर ऊंची होती है, जिसमें कंसर्टिना कॉइल बाड़, रोशनी, और सीसीटीवी कैमरे होते हैं, डिपो की सुरक्षा सुनिश्चित करती है।
फिगर 15. सुबाष नगर डिपो लेआउट

निष्कर्ष

भोपाल मेट्रो रेल डिपो एक आधुनिक शहरी अवसंरचना का अद्भुत उदाहरण है, जिसमें अत्याधुनिक सुविधाएं, सुविचारित डिजाइन, और स्थिरता के प्रति प्रतिबद्धता है। डिपो ऑपरेशन नियंत्रण और रोलिंग स्टॉक, S&T, PSD, AFC, ट्रैक्शन, ट्रैक, और E&M सिस्टम के व्यापक रखरखाव के लिए नवीनतम तकनीक और उपकरणों से सुसज्जित है। यह रोलिंग स्टॉक और इसके सहायक प्रणालियों के लिए सेवा की गुणवत्ता और सेवा जीवन को बढ़ाता है, जो भोपाल में शहरी परिवहन के लिए एक बेहतर भविष्य का वादा करता है।

Comments

Popular posts from this blog

स्वच्छ हवा की दिशा में कदम: भोपाल और इंदौर मेट्रो निर्माण स्थलों पर धूल और वायु गुणवत्ता नियंत्रण के उपाय

  भोपाल और इंदौर मेट्रो निर्माण परियोजनाएँ शहरी परिदृश्यों को बदलने में एक महत्वपूर्ण भूमिका निभाती हैं। हालांकि, इन परियोजनाओं से वायु गुणवत्ता को बनाए रखना एक बड़ी चुनौती है। एमपी मेट्रो में, हम पर्यावरणीय प्रभावों को कम करने और जन स्वास्थ्य को प्राथमिकता देने के लिए प्रतिबद्ध हैं। हमारे सटीक योजनाओं और नवाचारों के माध्यम से, हम यह सुनिश्चित करते हैं कि हमारे निर्माण कार्य उच्चतम पर्यावरण मानकों के अनुरूप हों। धूल के स्रोत को समझना निर्माण स्थलों पर धूल के उत्पन्न होने के प्रमुख कारण निम्नलिखित हैं: खुदाई और मिट्टी हटाने की गतिविधियाँ। सामग्री का संभालना, उसका भंडारण और परिवहन। बैचिंग प्लांट्स में कंक्रीट निर्माण। बिना पक्की सड़कों पर वाहनों की आवाजाही। खुली कार्यस्थलों पर हवा के कारण कटाव। इन चुनौतियों का समाधान करने के लिए, हमारा निर्माण पर्यावरण प्रबंधन योजना (CEMP) वायु प्रदूषण को नियंत्रित करने और परिवेशीय वायु गुणवत्ता बनाए रखने की प्रक्रियाएँ प्रदान करता है। धूल नियंत्रण के उपाय: बहुआयामी दृष्टिकोण प्रभावी धूल नियंत्रण के लिए निवारक और सक्रिय दोनों उपायों का उपयोग आवश्यक ...

MPMRCL Contracting Practices: A Comprehensive Overview

  Introduction The procurement process for the Madhya Pradesh Metro Rail Corporation Limited (MPMRCL) is executed through open tenders that are publicly accessible on the Central Public Procurement Portal and Government e-Marketplace (GeM). These processes adhere to the General Financial Rules (GFR) 2017 and the guidelines issued by the Department of Expenditure, as outlined in the Manual for Procurement. This manual serves as a comprehensive reference for public procurement, ensuring that all tendering processes follow a standardized procedure. Procurement Cycle The procurement cycle involves several stages that are crucial for the planning, sanctioning, and execution of works. Here’s a breakdown of the key stages: Perspective Planning: Initiating the groundwork for future projects. Preliminary Project Report (PPR): Preparing an initial or rough cost estimate. Acceptance of Necessity: Issuing in-principle approval to proceed. Detailed Project Report (DPR): Developing a compreh...

A Futuristic Approach to Automatic Fare Collection in Indore Metro

  The Indore  Metro, is set to revolutionize public transportation in the city. Among the many advanced features it will bring, the Automatic Fare Collection (AFC) system stands out as a key component. AFC is a technology-driven solution that streamlines the ticketing process, ensuring a smooth and efficient experience for commuters. Let's delve into the details of this cutting-edge system and explore the possibilities it holds for the future.   Contactless NCMC (National Common Mobility Card): A Game-Changer Gone are the days of traditional metro tokens and the closed-loop Cards. NCMC is a Government of India initiative with the vision of ‘one nation, one card’ for all payments (transit as well as retail). The Indore  Metro has adopted NCMC concept, similar to those used by few other major metro systems in India. These cards are normal Prepaid-cum-debit cards compatible to EMV and Rupay standards issued by any Bank that is authorized by the Reserve Bank of India. Th...